Renovation energetique d'un etablissement scolaire • Choisy-le-Roi (94) • 2025
Ecole Elementaire Cachin
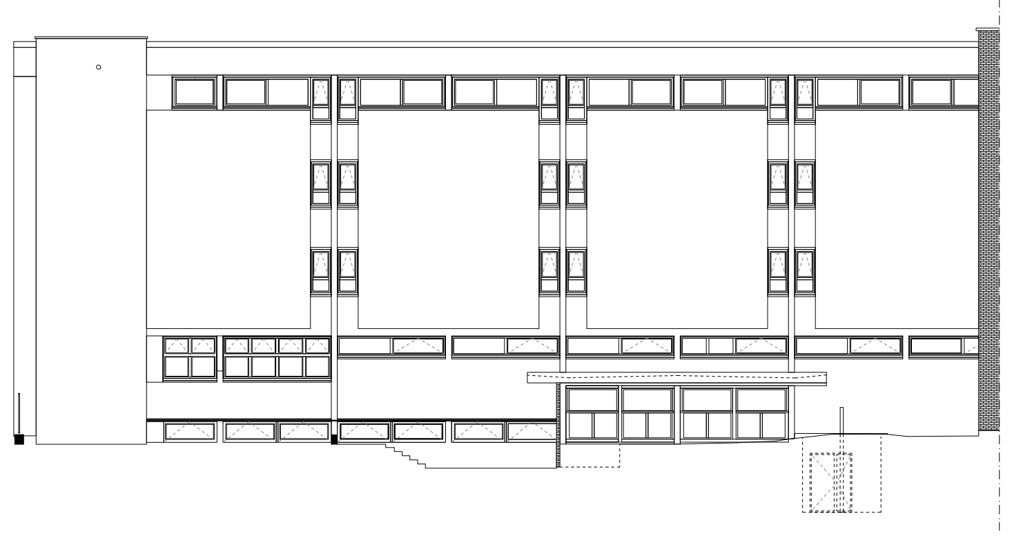
Releve par scan 3D de l'ensemble des facades d'une ecole elementaire. Realisation de l'ensemble des plans 2D des facades.
-
Releve 3D
-
Plans 2D facades
Facades
Type
2025
Annee
Maitre d'Ouvrage Public
Client
Galerie
Derniers projets
Voir tous les projets Renovation energetique d'un etablissement scolaire
Ecole Maternelle Cachin
Releve par scan 3D de l'ensemble des facades d'une ecole maternelle. Realisation de l'ensemble des plans 2D des facades.
Voir le projet
Renovation energetique d'un etablissement scolaire
Ecole Maternelle Cachin
Releve par scan 3D de l'ensemble des facades d'une ecole maternelle. Realisation de l'ensemble des plans 2D des facades.
Choisy-le-Roi (94) 2025
Rehabilitation d'un couvent
Couvent des Filles de La Croix
Releve par scan 3D d'un ancien couvent de 1000 m². Modelisation 3D et plans 2D des niveaux, facades, toiture et plan de masse via une maquette numerique Archicad.
Voir le projet
Rehabilitation d'un couvent
Couvent des Filles de La Croix
Releve par scan 3D d'un ancien couvent de 1000 m². Modelisation 3D et plans 2D des niveaux, facades, toiture et plan de masse via une maquette numerique Archicad.
Igon (64) 2023
Rehabilitation d'un etablissement scolaire
Ecole St Joseph
Releves par scan 3D d'un etablissement scolaire de 4600 m². Modelisation 3D et plans 2D des niveaux, facades, toiture et plan de masse via une maquette numerique Archicad. Video et releves photogrammetriques par drone.
Voir le projet
Rehabilitation d'un etablissement scolaire
Ecole St Joseph
Releves par scan 3D d'un etablissement scolaire de 4600 m². Modelisation 3D et plans 2D des niveaux, facades, toiture et plan de masse via une maquette numerique Archicad. Video et releves photogrammetriques par drone.
Pleyben (29) 2025