Réhabilitation d'une villa classée • Pau (64) • 2026
Villa Montilleul
Relevé par scan 3D et drone d'une villa classée au patrimoine. Plans 2D des niveaux, toitures et façades. Photogrammétrie par drone du plan des toitures.
Galerie
Derniers projets
Voir tous les projets
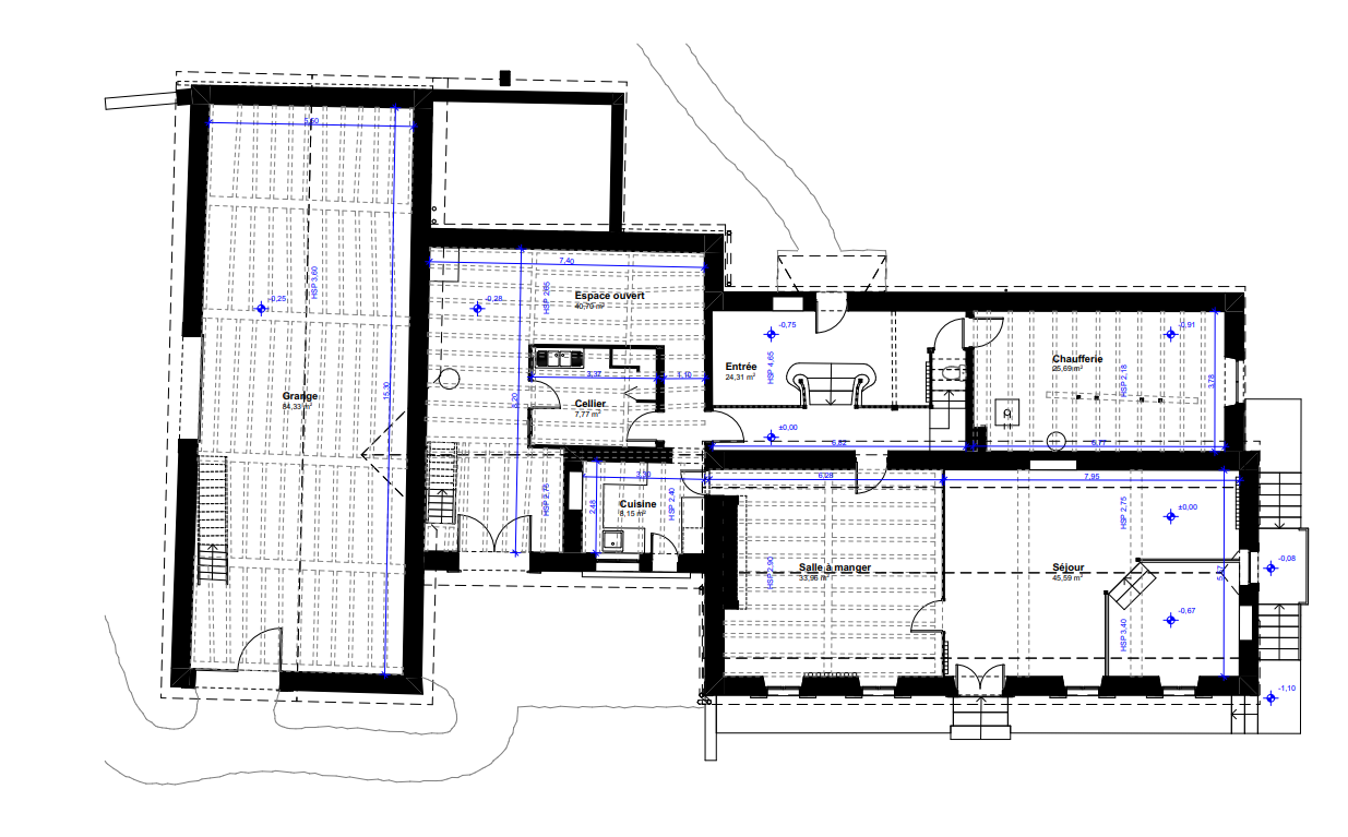
Réhabilitation d'un corps de ferme
Corps de ferme St Faust
Relevé par scan 3D d'un corps de ferme de 600 m². Plans 2D de l'ensemble des niveaux, toitures et façades. Plan des toitures en photogrammétrie via capture drone.
Réhabilitation d'un couvent
Couvent des Filles de La Croix
Relevé par scan 3D d'un ancien couvent de 1000 m². Modélisation 3D et plans 2D des niveaux, facades, toiture et plan de masse via une maquette numerique Archicad.
Rénovation énergétique d'un établissement scolaire
Ecole Élémentaire Cachin
Relevé par scan 3D de l'ensemble des facades d'une ecole élémentaire. Realisation de l'ensemble des plans 2D des facades.